事務所中屋敷町貸家1階
情報更新日:2026-04-18
| 所在地 岩手県 盛岡市 中屋敷町 | ||||
| 間取 | 月額賃料 | 専有面積 バルコニー面積 |
共益費 管理費 |
敷金 礼金 |
|---|---|---|---|---|
| 4DK | 99,000円/月 |
91.85㎡ ─ |
─ ─ |
2ヶ月 198,000円 1ヶ月 99,000円 |
SOHOや事業用に使用でいる物件です!
本物件の内容や画像等は全て現況優先とさせていただきます。各画像は参考図となります。
| 交通機関 | 岩手県交通 三ツ家 バス停徒歩4分 | ||
|---|---|---|---|
| 学区 | 厨川小学校(1.1km)・城西中学校(0.8km) | ||
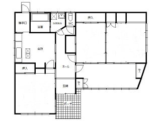
| 詳細間取 | 4DK (和8帖×2、和6帖×1、洋7.2帖×1、DK6帖) | ||
| 周辺施設 | スーパーマルイチ:690m、マックスバリュ:470m | ||
| 駐車場 | 敷地内 無料 | 建物構造 | 木造 地上1階建 |
| 駐車場複数台 | 可 | 主要採光方向 | 南 |
| 仲介料 | 99,000円 | 周辺環境 | |
| 保険又は共済 | 要加入 | 入居可能日 | 即入居可 |
| 保証金 | 築年月 | 昭和61年3月 | |
| 権利金 | 取引態様 | 仲介 | |
| 保証会社 | 利用必須 アーク賃貸保証 ■初回賃貸保証料:月額賃料合計の80%から | ||
| その他費用 | |||
| トイレ | 洋式 独立 水洗 暖房便座 洗浄機能付 | 風呂 | 有 シャワー有 給湯式 |
| 設備 | 上水道設備(公営) 下水道設備 給湯(ガス) 洗面化粧台(独立) LPガス エアコン 専用庭 下駄箱 洗濯機置場 二重サッシ 網戸 TVアンテナ | ||
| 備考 | 保険加入2年間 ■契約内容等確認やご相談ごとがありましたらお気軽にご用命ください■お車は複数台駐車可能ですが車種によりその限りではありませんので、現地ご確認ください ペット可 普通賃貸借 | ||
| 取扱業者 |
サンセイ興発(株) 岩手県知事免許(11)第1334号 岩手県盛岡市中央通三丁目4-27 TEL:019-623-8383 FAX:019-623-8381 (一社)岩手県宅地建物取引業協会会員 東北地区不動産公正取引協議会加盟事業者 |
||














