タウンハウスCHAT WOODD号室
情報更新日:2026-04-08
| 所在地 岩手県 盛岡市 東安庭一丁目 | ||||
| 間取 | 月額賃料 | 専有面積 バルコニー面積 |
共益費 管理費 |
敷金 礼金 |
|---|---|---|---|---|
| 2LK | 69,000円/月 |
64.58㎡ 3.3㎡ |
─ ─ |
1ヶ月 69,000円 ─ |
人気のメゾネットタイプ!ペット共生物件♪
本物件の内容や画像等は全て現況優先とさせていただきます。各画像は参考図となります。
| 交通機関 | 岩手県交通バス 東安庭一丁目バス停 徒歩6分 | ||
|---|---|---|---|
| 学区 | |||
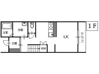
| 詳細間取 | 2LK (洋8帖×1、洋6帖×1、LK9.7帖、ロフト4帖) | ||
| 周辺施設 | |||
| 駐車場 | 敷地内 無料 | 建物構造 | 木造 地上2階建 |
| 駐車場複数台 | 可1台まで 1台あたり3,000円/月 | 主要採光方向 | 南 |
| 仲介料 | (1ヶ月相当) | 周辺環境 | |
| 保険又は共済 | 要加入 | 入居可能日 | 他 (リフォーム中) |
| 保証金 | 築年月 | 平成17年3月 | |
| 権利金 | 取引態様 | 仲介 | |
| 保証会社 | 利用必須 アーク賃貸保証 月額賃料合計の60% | ||
| その他費用 | 町内会費:400円 | ||
| トイレ | 洋式 独立 水洗 暖房便座 洗浄機能付 | 風呂 | 有 シャワー有 追焚機能付 |
| 設備 | 上水道設備(公営) 下水道設備 給湯(ガス)3箇所 LPガス インターホン エアコン バルコニー 専用庭 下駄箱 洗濯機置場 物置 ウォークインクローゼット 網戸 カーテンレール 照明器具 電話配線設備 TVアンテナ フローリング クローゼット | ||
| 備考 | 保険加入2年間 保険料(参考) 18,000円 ■ペット飼育の場合は敷金2ヶ月お預かりします ペット可 普通賃貸借 ※同業他社による客付け可 | ||
| 取扱業者 |
サンセイ興発(株) 岩手県知事免許(11)第1334号 岩手県盛岡市中央通三丁目4-27 TEL:019-623-8383 FAX:019-623-8381 (一社)岩手県宅地建物取引業協会会員 東北地区不動産公正取引協議会加盟事業者 |
||
















